Fortsæt til indhold
Tilbage

arkitekt til bæredygtige mini huse

arkitekt til bæredygtige mini huse

  • blog
  • projekter
    • projekter
    • prisliste
    • freelancer
    • videos
  • kontakt
  • sprog: dansk
    • English English
    • dansk dansk
Hjem » projekter

projekter


mini huse til Sølund huse

visualiseringer til combigruppen

anneks på Helgenæs

værksted i Lystrup

anneks i Lumsås

skitseforslag taglejlighed

sommerhus i Thorsager

kolonihave Moselund

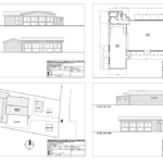
myndighedstegninger

myndighedstegninger

model

model

visualisering af biblioteket i Silkeborg

Share:

  • Click to share on Facebook (Opens in new window) Facebook
  • Click to share on LinkedIn (Opens in new window) LinkedIn

(English) Houzz
Susanne Benfer i Århus, DK på Houzz
Susanne Benfer i Århus, DK på Houzz

· © 2026 mini house · customiz´d by concept 3 ·